Paris 8ème
Saint Augustin

Exceptionnel rez de jardin de 367m2 plein soleil avec vue sur un monument.

367m²  |   9 800 000 €

Triple réception – 4/5 chambres – Parkings

VENDU

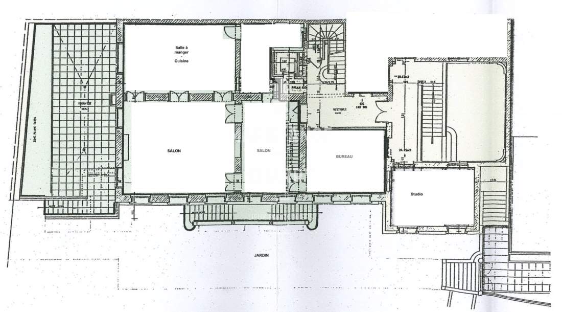
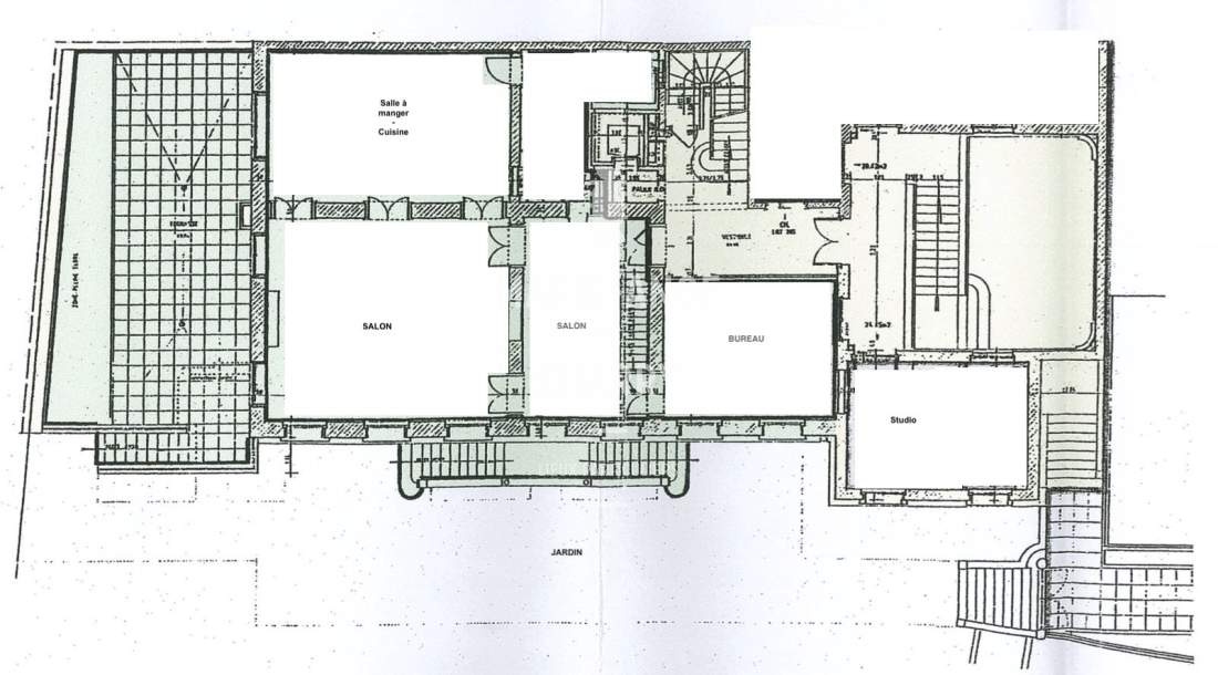
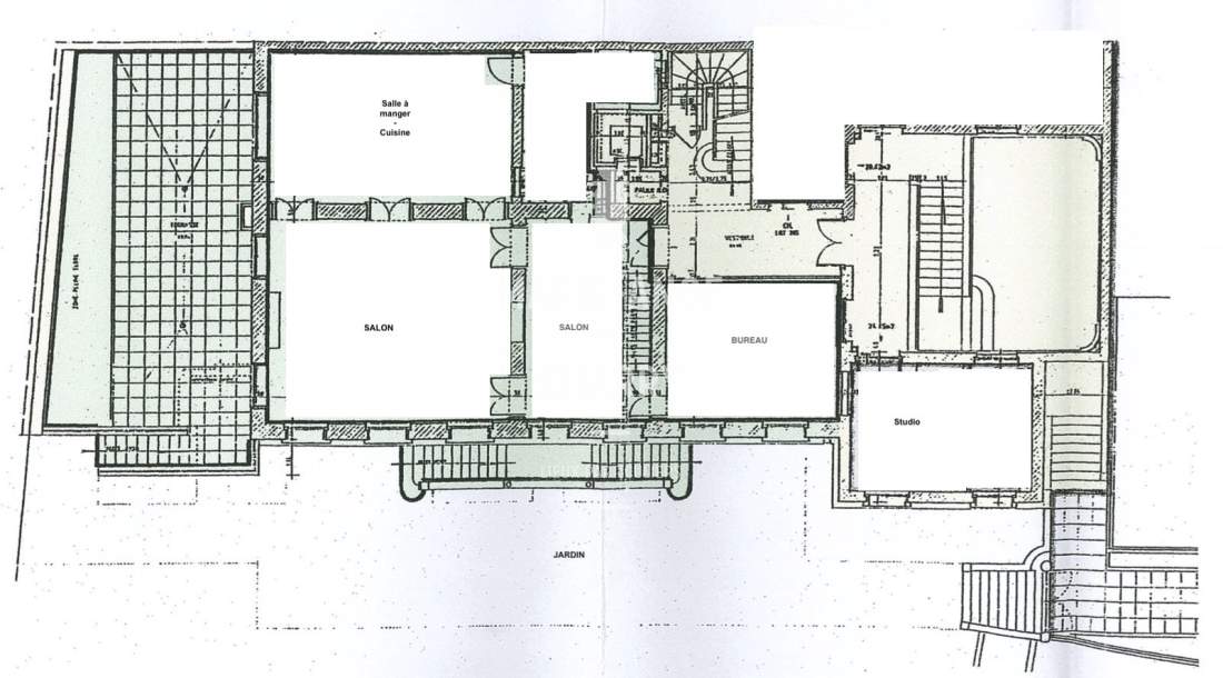
SAINT AUGUSTIN – Dans un magnifique Hôtel Particulier du XIXème siècle, exceptionnel ensemble de 367m2, exposé Sud-Ouest, ouvrant sur un jardin de 550 m2 environ et 97m2 de terrasse et bénéficiant de magnifiques volumes.
Au calme et à l’abri des regards, ce lieu rare tant par son emplacement que son calme ou ses vues, est composé de :

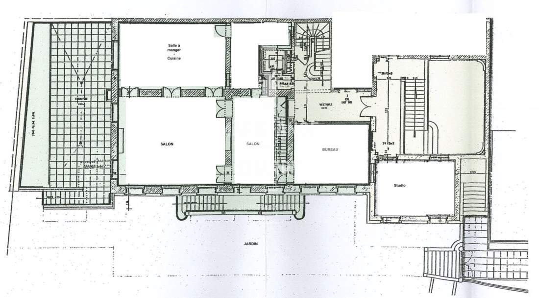
En rez de chaussée (Hauteur sous plafond de 4m) :
– Salon de 54m2 bénéficiant de 5 fenêtres plein soleil avec vue directe sur le dôme de St Augustin et son sublime jardin. Accès à une terrasse de 97m2.
– Salon de 30m2 avec accès au jardin par un escalier de pierre,
– Cuisine / Salle à manger de 41m2 de plain pied sur la terrasse,
– Office,
– Bureau de 25m2 à reunir avec un studio mitoyen de 23m2 (possibilité de suite parentale de 49m2)
– toilettes

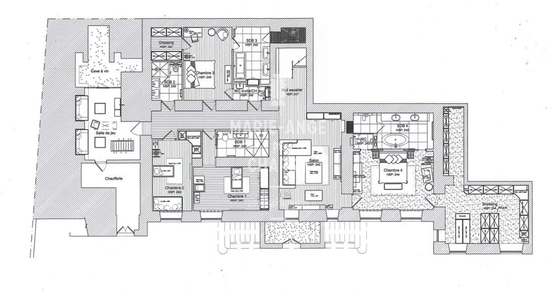
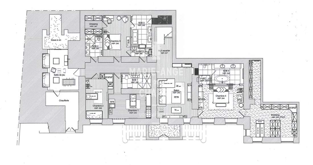
En rez de jardin :
– Salon de 31m2,
– Chambre de 21m2 avec sa salle de bains et dressing de 27m2,
– Une chambre de 17m2 avec sa salle de douche,
– Une chambre de 14m2,
– Une salle de bains,
– Une salle de sport de 15m2 avec salle de douche,
– Buanderie,
– Cave à vin,
– Toilettes,

Un studio de 23,20m2 (compris dans les 367m2) attenant au bureau du rez de chaussée, une cave et deux places de parkings au sous-sol complètent ce bien (accès par ascenseur direct).

Possibilité d’acquérir en sus deux autres places de parkings.

Chauffage individuel au gaz.

Immeuble

Ascenseur

Chauffage individuel

Interphone

Appartement

Étage : Rez-de-jardin

8 pièces | 4 chambres

3 salles de bain

Jardin

Terrasse

Parking

Soyons précis

Surface au sol : 367m²

Surface Carrez : 367.00m²

Surface extérieur : m²

Charges mensuelles : €

Taxe foncière : 0€

Nombre de lots copropriété :

Prix FAI : 9 800 000 €