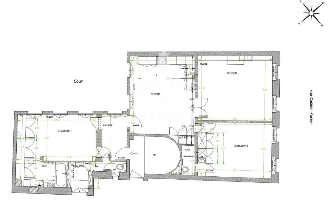
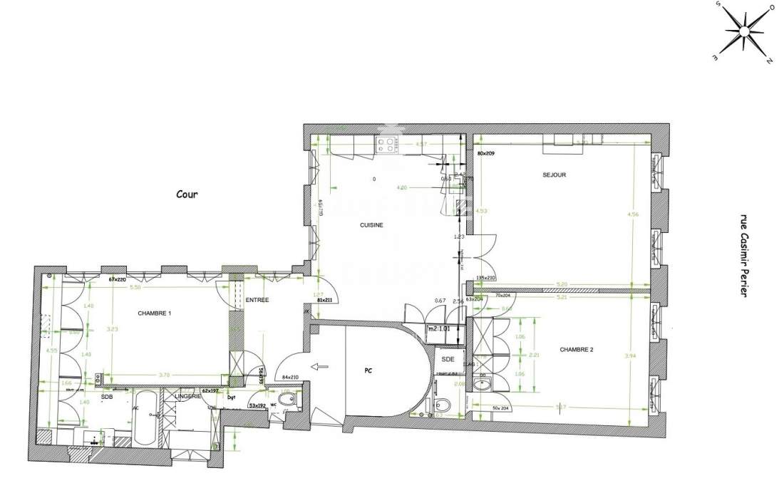
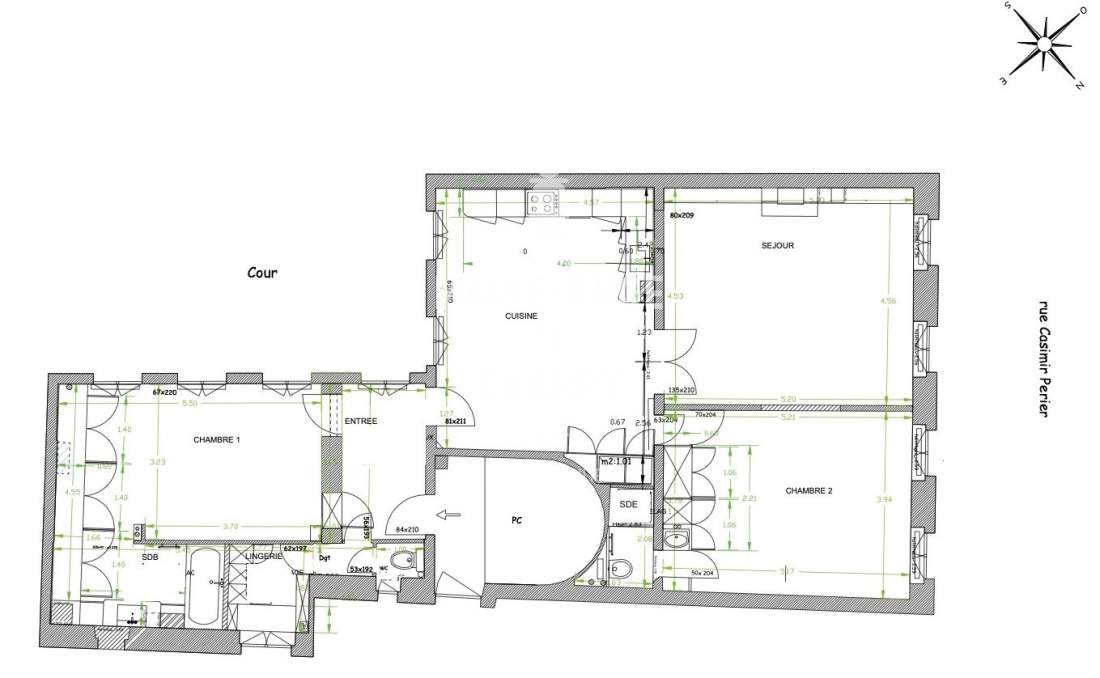
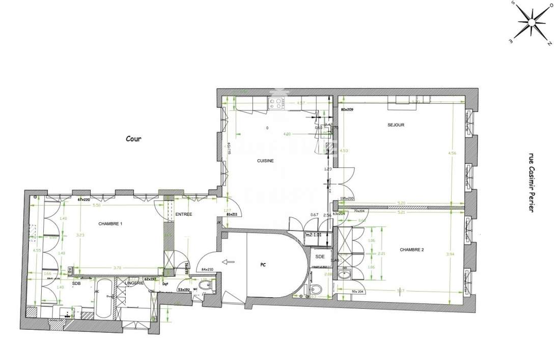
Réception – 2 suites
Dans un immeuble datant de 1850, cet appartement en parfait état de 106m2 est composé de :
– Entrée,
– Salon de 23m2 offrant une jolie vue sur la Basilique,
– Salle à manger – cuisine de 26m2,
– Chambre principale de 24m2 sur cour au calme, avec sa salle de bains et dressing,
– Une 2ème chambre de 18m2 avec sa salle de douche,
– Buanderie,
– Rangements,
Cet appartement au 1er étage a un plan parfait.
Une cave complète ce bien.
Calme. Charme.
Immeuble
Datant de 1850
Ascenseur
Chauffage collectif
Interphone
Appartement
Étage : 1er
4 pièces | 2 chambres
2 salles de bain
Soyons précis
Surface au sol : 107m²
Surface Carrez : 104.63m²
Surface extérieur : m²
Charges mensuelles : €
Taxe foncière : 0€
Nombre de lots copropriété :
Prix FAI : Nous consulter
