Réception – 4 chambres – 2 bains
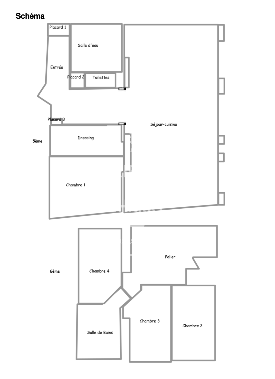
Aux 5ème et 6ème étages avec ascenseur (jusqu’au 4ème), ce duplex Plein Sud et traversant de 145 m2 habitables (117,57m2 Loi Carrez) est composé de :
Au 5ème étage :
– Entrée,
– Salon avec salle à manger / cuisine de 51m2,
– Chambre principale avec dressing,
– Salle de douche,
– Toilettes,
Au 6ème étage :
– Trois chambres d’enfants,
– Espace salle de jeux,
– Salle de bains avec toilettes,
Charme, lumière.
Libération les lieux 1er décembre 2023.
« Les informations sur les risques auxquels ce bien est exposé sont disponibles sur le site Géorisques http://www.georisques.gouv.fr »
Immeuble
Datant de 1801
Ascenseur
Chauffage individuel
Appartement
Étage : Dernier étage
5 pièces | 4 chambres
2 salles de bain
Soyons précis
Surface au sol : 145m²
Surface Carrez : 117.57m²
Surface extérieur : m²
Charges mensuelles : 289€
Taxe foncière : 1 378€
Nombre de lots copropriété :
DPE : C - GES : C
Honoraires à la charge de l'acquéreur
Prix FAI : 1 580 000 €
Commission : 3,50%
