Triple réception – 2 chambres – 2 bains – Lingerie – Services
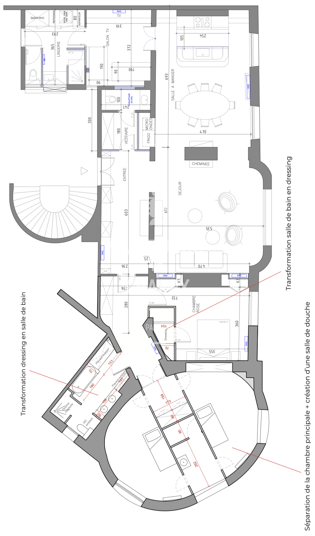
Cet appartement Plein Soleil de 167 m2 (164,68m2 Loi Carrez) situé au 3ème étage offrant une vue dégagée et bénéficiant d’une hauteur sous plafond de 3m20 est composé de :
– Entrée,
– Salon de 30m2,
– Petit salon de 10m2,
– Salle à manger – Cuisine de 30m2,
– Suite parentale de 42m2 avec salle de bains et dressings
– Chambre de 16m2 avec dressing et salle de douche,
– Lingerie de 10m2,
– Vestiaire invités, Toilettes,
Parfait état. Lumière.Charme
Exposition Sud Ouest. Nombreux rangements.
Chauffage individuel à gaz. Climatisation dans les chambres et le petit salon.
Deux caves complètent ce bien.
Box en location à proximité.
Possibilité d’acquérir en sus au 6ème étage deux services d’environ 12,5m2 carrez (14m2 au sol) et 7m2 accessibles par ascenseur + une cave (170 000 €)
“Les informations sur les risques auxquels ce bien est exposé sont disponibles sur le site Géorisques http://www.georisques.gouv.fr”.
Immeuble
Ascenseur
Chauffage individuel
Appartement
Étage : 3ème
5 pièces | 2 chambres
2 salles de bain
Parking
Soyons précis
Surface au sol : 167m²
Surface Carrez : 164.68m²
Surface extérieur : m²
Charges mensuelles : 834€
Taxe foncière : 4 010€
Nombre de lots copropriété :
Honoraires à la charge de l'acquéreur
Prix FAI : 2 650 000 €
Commission : 5,00%
