Double réception – 3 chambres – 2 bains- salon Tv – Lingerie – Services – Parking
Cet appartement Plein soleil de 167m2 (164,68m2 Loi Carrez) situé au 3ème étage offrant une vue dégagée et bénéficiant d’une hauteur sous plafond de 3m20 est composé de :
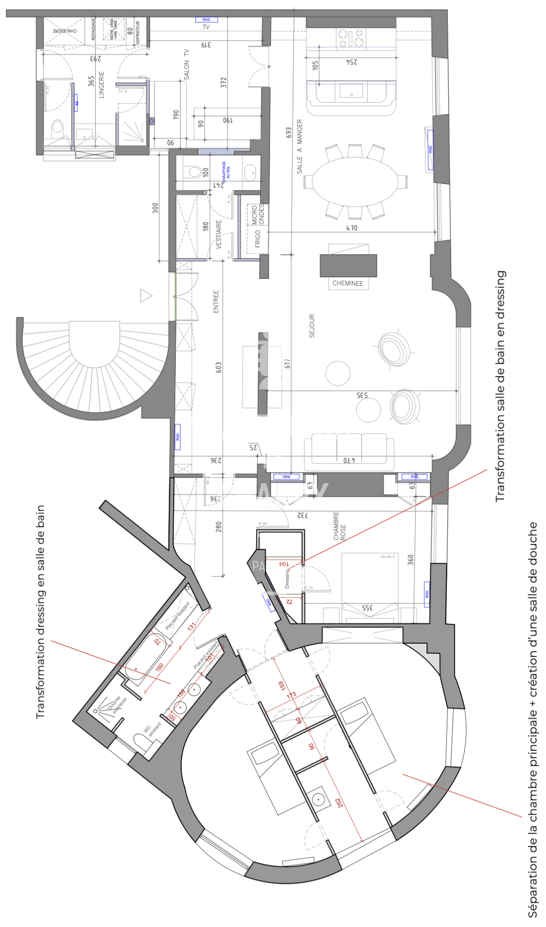
– Entrée,
– Salon de 30 m2,
– Salle à manger – Cuisine de 30m2,
– Salon TV,
– Chambre de 16 m2 avec dressings,
– Salle de bains avec WC.
– Deux chambres de 13m2 avec dressing et salle de douche (plan disponible, budget 70 000 €)
– Lingerie de 10m2,
– Vestiaire d’invités, Toilettes,
Parfait état . Lumière. Charme.
Exposition Sud Ouest. Nombreux rangements
Climatisation dans les chambres et le petit salon.
Box en location à proximité.
Possibilité d’acquérir en sus au 6ème étage deux services d’environ 12,5 m2 carrez (14m2 au sol) et 7m2 accessibles par ascenseur et une cave (170 000 euros)
“Les informations sur les risques auxquels ce bien est exposé sont disponibles sur le site Géorisques http://www.georisques.gouv.fr”.
Immeuble
Ascenseur
Chauffage individuel
Appartement
Étage : 3ème
5 pièces | 3 chambres
2 salles de bain
Parking
Soyons précis
Surface au sol : 167m²
Surface Carrez : 164.68m²
Surface extérieur : m²
Charges mensuelles : 572€
Taxe foncière : 4 010€
Nombre de lots copropriété :
DPE : D - GES : D
Honoraires à la charge de l'acquéreur
Prix FAI : 2 650 000 €
Commission : 4,00%
