Double réception – 4 chambres – 3 bains – Lingerie – Parkings
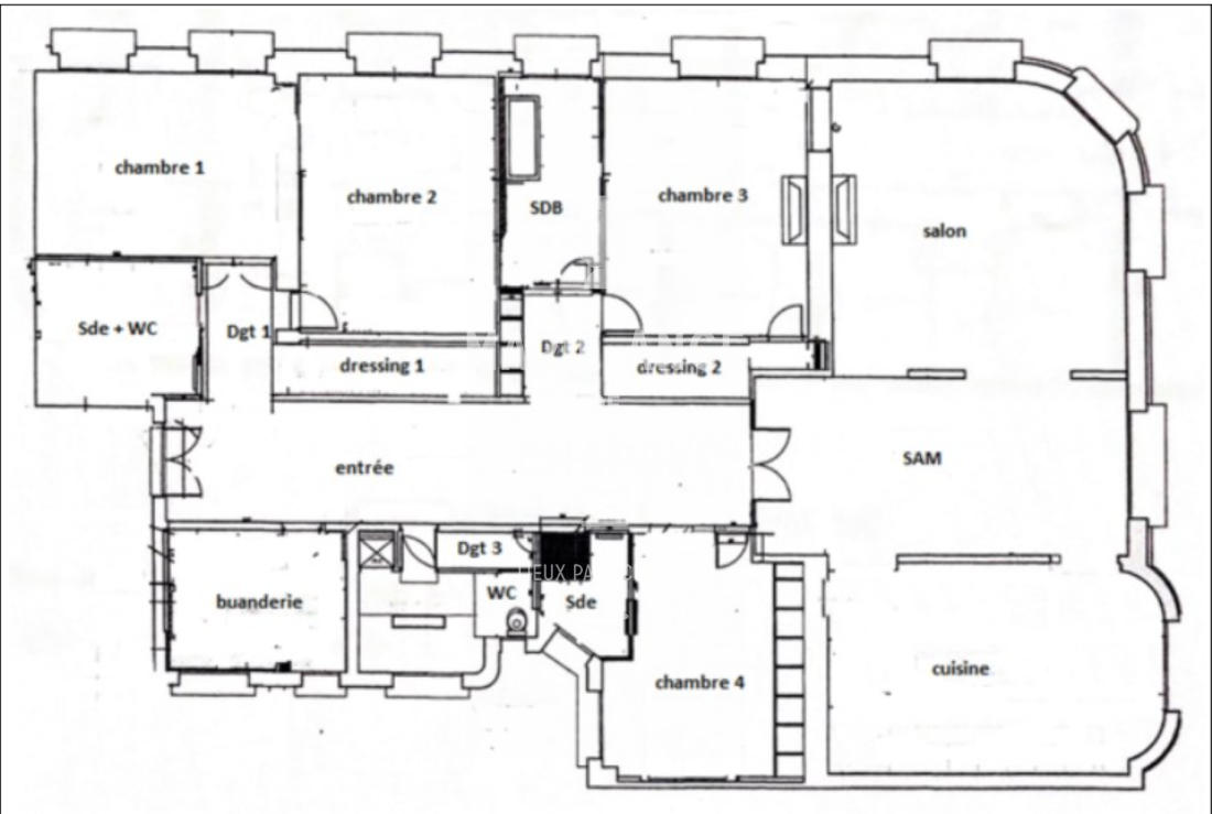
Au calme dans une voie privée, cet appartement de 251m2 au sol (248m2 Loi Carrez) en parfait état est composé de :
– Galerie d’entrée,
– Salon d’angle de 35m2 bénéficiant d’une hauteur sous plafond de 3m30,
– Salle à manger de 28m2,
– Cuisine,
– Chambre principale de 22m2 avec dressing et salle de bains,
– Deux chambres de 19 et 17m2,
– Dressing,
– Salle de douche avec toilettes,
– Chambre de 17m2 avec dressing et salle de douche,
– Lingerie de 10m2,
– Toilettes,
Calme – Beaux Volumes.
Usage de 2 parkings dans la voie privée.
Une cave complète ce bien.
“Les informations sur les risques auxquels ce bien est exposé sont disponibles sur le site Géorisques http://www.georisques.gouv.fr”.
Immeuble
Ascenseur
Chauffage collectif
Appartement
Étage : 3ème
7 pièces | 4 chambres
3 salles de bain
Parking
Soyons précis
Surface au sol : 251m²
Surface Carrez : 247.86m²
Surface extérieur : m²
Charges mensuelles : 840€
Taxe foncière : 4 661€
Nombre de lots copropriété :
DPE : E - GES : E
Honoraires à la charge de l'acquéreur
Prix FAI : 3 150 000 €
Commission : 3,50%
