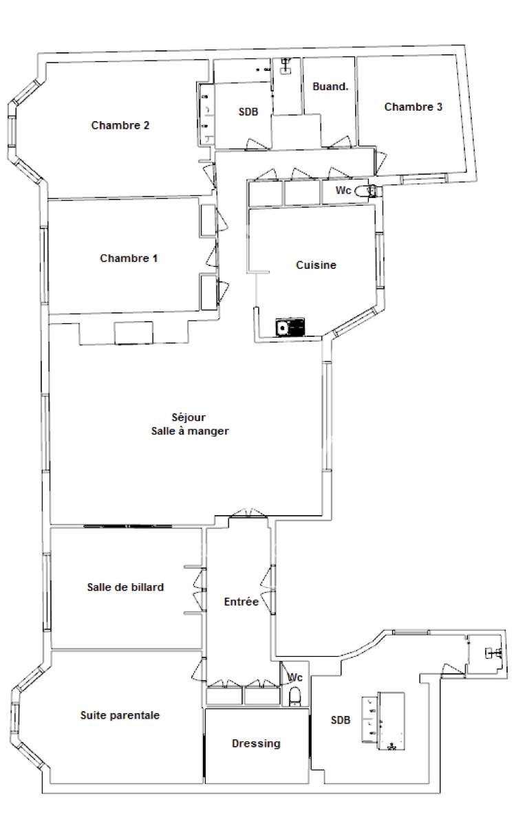
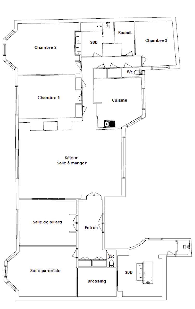
Double réception – Bureau – 4/5 chambres – 2 bains
Cet appartement traversant de 226 m2 Habitable ( 223,84m2 Loi Carrez) bénéficiant d’une hauteur sous plafond de 2m95 est composé de :
– Entrée,
– Double réception avec cuisine américaine,
– Bureau ou 5ème chambre,
– Espace parentale de 50m2 : chambre, dressing, salle de bains et toilettes,
– Trois chambres de 24,16 et 11m2,
– Salle de bains / douche,
– Lingerie,
– Toilettes,
Nombreux rangements.Très bon plan.
Lumière, calme.
Une cave complète ce bien.
« Les informations sur les risques auxquels ce bien est exposé sont disponibles sur le site Géorisques http://www.georisques.gouv.fr »
Immeuble
Datant de 1930
Ascenseur
Chauffage collectif
Interphone
Appartement
Étage : 2ème
7 pièces | 4 chambres
2 salles de bain
Soyons précis
Surface au sol : 226m²
Surface Carrez : 223.84m²
Surface extérieur : m²
Charges mensuelles : 1 060€
Taxe foncière : 3 022€
Nombre de lots copropriété :
DPE : E - GES : E
Honoraires à la charge de l'acquéreur
Prix FAI : 3 590 000 €
Commission : 3,50%
